Suchergebnisse: Keine Produkte gefunden
Mehr Ergebnisse für Sie:

DIE NEUGESTALTUNG DES GARDEN FREDIANI

Garden Frediani: Eine spannende Reise ins Herz der von Orlandelli unterzeichneten Transformation

Garden Frediani: Eine spannende Reise ins Herz der von Orlandelli unterzeichneten Transformation
Willkommen in der bezaubernden Welt von Garden Frediani in Altopascio (Toskana, Italien)! Sind Sie bereit für eine aufregende Reise in ein komplett renoviertes Gartencenter? Heute präsentieren wir einen außergewöhnlichen Artikel von Elena Tibiletti für die Zeitschrift Agricommercio & Garden Retail, in dem sie ihre Eindrücke von ihrem Besuch im Garden Frediani nach seiner revolutionären Neugestaltung teilt, die von uns bei Organizzazione Orlandelli kuratiert wurde. Bei ihrem Besuch entdeckte die Journalistin die überraschenden Unterschiede und Stärken dieses Sanierungsprojekts. Durch die Worte von Massimo Frediani und seinen Söhnen Paola und Mattia erhielt sie detaillierte Einblicke in die Umsetzung des Projekts und fing die einzigartige Atmosphäre und die fesselnde Gastfreundschaft ein, die den neuen Look von Garden Frediani prägen. Wir freuen uns, diesen Artikel erneut auf unserer Website zu veröffentlichen, da er eine konkrete Anerkennung unserer geleisteten Arbeit darstellt. Sind Sie bereit, in diese außergewöhnliche Geschichte der Transformation einzutauchen? Machen Sie sich bereit, durch die Worte von Elena Tibiletti zu entdecken, wie sich Garden Frediani verändert hat!

Erleben Sie die unglaubliche Verwandlung des Garden Frediani in Altopascio, die durch Orlandellis Renovierungsprojekt ermöglicht wurde.

Erleben Sie die unglaubliche Verwandlung des Garden Frediani in Altopascio, die durch Orlandellis Renovierungsprojekt ermöglicht wurde.
Das von Orlandelli durchgeführte Renovierungsprojekt von Garden Frediani in Altopascio (Toskana, Italien) zielt darauf ab, das Geschäft zu modernisieren und es einladender und ansprechender zu machen.

Auch Gartencenter müssen sich erneuern. Dies geschieht, wenn ein Geschäft bereits seit mehreren Jahrzehnten geöffnet ist und seine Flächen und Auslagen nicht mehr für die neuen Verkaufstrends geeignet sind. Es kommt aber auch in relativ neuen Gartencentern vor, die nun das Bedürfnis verspüren, neue Räume zu schaffen, um neuen Anforderungen gerecht zu werden. Organizzazione Orlandelli ist eines der Unternehmen, das sich auf die Erfüllung der Bedürfnisse von Gartencentern spezialisiert hat, von der Ausstattung bis zum Design. Sie sind in der Lage, unter Berücksichtigung von Marketingstrategien eine neue Einrichtung zu entwerfen oder eine bestehende zu renovieren. Sie können die komplette Designstudie erstellen und die fertige Struktur schlüsselfertig an den Kunden liefern. Dies ist der in diesem Artikel beschriebene Fall.

DIE ZU ERREICHENDEN ZIELE

Garden Frediani aus Altopascio (Toskana, Italien) musste sein Geschäft modernisieren und ihm ein aktuelles und faszinierendes Aussehen verleihen. Um diesem Bedarf gerecht zu werden, wurde das Geschäft komplett neu gestaltet. Der Erneuerungsprozess begann mit einer Neugestaltung der Räume und der Verkaufsfläche, der Neugestaltung der Einkaufswege der Kunden und der Anordnung der Verkaufsdisplays.

BEDÜRFNISSE UND LÖSUNGEN

Vor der Neugestaltung waren die Räume überfüllt und schlecht verteilt. Die Ständer für die Ausstellung waren entschieden veraltet, unattraktiv und noch weniger funktionalVor der Neugestaltung waren die Räume überfüllt und schlecht verteilt. Die Ständer für die Ausstellung waren entschieden veraltet, unattraktiv und noch weniger funktional
Der Garden Frediani (600 m2 überdacht und 120 m2 nicht überdacht) musste eine große Anzahl von Pflanzen zum Verkauf anbieten, von kleinen Blütenpflanzen bis hin zu hohen Grünpflanzen. Aus diesem Grund wurden die alten Präsentationsständer durch die Einführung von Tischen und Konzept-Sets aus Aluminiumdisplays ersetzt. Dank der Abmessungen der verschiedenen ausgewählten Präsentationsständer war es möglich, die Verkaufsfläche zu maximieren und die unterschiedlichen Höhen der Präsentationsständer zu nutzen, um die verschiedenen Pflanzenarten im Verkauf hervorzuheben und dem Kunden den Einstieg zu erleichtern Nehmen Sie die Pflanze, die er kaufen möchte, aus der Auslage. Die optimale Fokussierung auf die zu kaufenden Pflanzen und die Natürlichkeit der Kaufgeste tragen dazu bei, das Einkaufserlebnis des Kunden zu fördern und den Umsatz zu steigern.

Platzmaximierung: Die neuen Verkaufstische präsentieren alle Pflanzen und Blumen optimal

Neue Ausstellungsstände, die den Platz optimal ausnutzen und alle zum Verkauf stehenden Pflanzen und Blumen zeigen.Neue Ausstellungsstände, die den Platz optimal ausnutzen und alle zum Verkauf stehenden Pflanzen und Blumen zeigen.

VERPACKUNGSSTATION

Neben der Kasse befindet sich der Kompositionsschreibtisch, der auf der Rückseite über Schubladen und Türen für Dekorationsmaterialien verfügt.Neben der Kasse befindet sich der Kompositionsschreibtisch, der auf der Rückseite über Schubladen und Türen für Dekorationsmaterialien verfügt.
Ein weiterer Bedarf, den Garden Frediani hervorhob, war das Fehlen eines ausgestatteten Bereichs für die Verpackung. Aus diesem Grund wurde der Entwicklung des Bereichs für die Verpackung und der Kasse in der Nähe eines neuen Raums für die Präsentation von Kompositionen und Objekten große Aufmerksamkeit gewidmet. Der Bereich wurde mit Tischen ausgestattet, die speziell für die Verpackung von Pflanzen und Blumen konzipiert und entsprechend den Kundenbedürfnissen und im Einklang mit der Einrichtung des Geschäfts konfiguriert wurden. Unter der widerstandsfähigen Platte aus Feinsteinzeug dieser Verpackungsschreibtische wurden Schubladen zur Aufnahme von Rollen mit gebrauchsfertigen Klebebändern, ein Fach für Abfallbehälter und ein großes Staufach mit Doppeltüren eingesetzt. Durch die Konfiguration der Verpackungstische und die Synergien, die mit den Holzregalen für die Verpackung mit beweglichen Regalen hinter den Schreibtischen entstehen, ist es nicht nur möglich, die Verpackungsarbeiten für die Mitarbeiter von Garden Frediani erheblich zu erleichtern.

Das Feedback der Kunden des Ladens war positiv bezüglich des neu ausgestatteten Bereichs, da er es ermöglicht, den Bereich aufgeräumter zu halten, die Sicht auf die Wirkung zu verbessern und dem Kunden selbst zu helfen, eine klare Sicht auf das Verpackungsmaterial zu haben, das er zusammen mit dem Personal auswählen wird verantwortlich. Die Verpackungsstation blickt auf den neuen Bereich, der den Kompositionen und den Objekten gewidmet ist und mit Hilfe von Ausstellungstischen aus Holz und Feinsteinzeug im Einklang mit dem Stil des Verpackungsbereichs gestaltet wurde.

Die Positionierung der Kasse in der Nähe der Verpackungstheken und der Kompositions-/Dekorationsabteilung ist von strategischer Bedeutung, da sie den Kaufvorgang abschließt, indem sie dem Kunden empfiehlt, die gekauften Pflanzen einzupacken und Gegenstände und Kompositionen daneben zu platzieren, die während des Verpackens beobachtet werden können der eigenen Pflanzen oder warten auf die Bezahlung.

EINKAUFSERFAHRUNG

Vor der Kasse wurden Tische mit Deko-Ergänzungen und vorgefertigten Kompositionen aufgestellt, um Impulskäufe zu erleichtern.Vor der Kasse wurden Tische mit Deko-Ergänzungen und vorgefertigten Kompositionen aufgestellt, um Impulskäufe zu erleichtern.
Bei der Gestaltung der Customer Journeys haben wir uns neben der Definition von Kaufpfaden, die die Erkundung des Point of Sale erleichtern können, auf die funktionale Ebene konzentriert, indem wir Wege entworfen haben, die Kunden bei der Nutzung von Einkaufswagen durchlaufen können, was im Vorfeld nicht vorgesehen war. Ladenlayout für die Renovierung. Der Einsatz spezieller Einkaufswagen für Pflanzen, Blumen und verwandte Artikel hat immer wieder gezeigt, wie sie den Kunden den Einkauf erleichtern können, indem sie die Anzahl der gekauften Artikel erhöhen und das Einkaufserlebnis dank einfacher Handhabung verbessern. Ein kurzes Bild, das dieses Konzept sofort verständlich machen kann, ist, an den Kunden zu denken, der gezwungen ist, hin und her zu gehen, um Pflanzen und Säcke mit Erde zu sammeln, mit dem Risiko, dass er vom Kauf absieht, und ihn mit einem Kunden zu vergleichen, der zu Fuß geht Mit einem Wagen, der speziell für die Aufnahme der größten Anzahl an Pflanzen, Blumen oder ergänzenden Produkten in der Branche entwickelt wurde, können Sie sich überall bewegen. Bei der Renovierung der Räumlichkeiten haben wir schließlich mit der Pflasterung einiger Bereiche begonnen, um dem neuen Grundriss ein modernes und aufgeräumtes Erscheinungsbild zu verleihen und so dem Kunden dank der gleichmäßigen Oberfläche auch die Erkundung zu erleichtern.

[Die gezeigten Texte stammen aus Agricommercio & Garden Retail]

Eine Vision von der Vergangenheit bis zur Gegenwart

Hier können Sie die außergewöhnliche Entwicklung des Garden Frediani anhand einer Reihe von Bildern nacherleben, die seine Transformation dokumentieren. Erkunden Sie die Fotogalerien, um herauszufinden, wie das Geschäft vor dem Renovierungsprojekt aussah, tauchen Sie anhand der Grundrisse und Renderings in die Details des Transformationsprozesses ein und bewundern Sie schließlich das Endergebnis, d. h. wie der Garden Frediani heute, nach der Fertigstellung, aussieht von dem Projekt.

Vorher: Bilder des Gartencenters vor der Neugestaltung

Erleben Sie die Geschichte des Geschäfts anhand einer Sammlung von Fotos, die zeigen, wie es ursprünglich war, bevor es Änderungen gab.

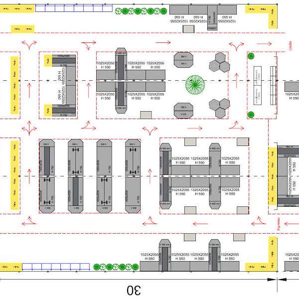
Projekt: Rendering und Konzept

Erkunden Sie die digitalen Bilder und Renderings, die während der Designphase erstellt wurden, um den kreativen Ansatz und die Ideen zu verstehen, die die Ladenrenovierung inspiriert haben.

Nachher: Der neue Look des Gartencenters

Die Bilder in dieser Galerie zeigen Ihnen das Geschäft in seinem neuen Gewand und heben die verbesserten Aspekte und Besonderheiten hervor, die es zu einem einladenden und modernen Ort machen.
Wir hoffen, dass diese Fotogalerien Ihnen einen umfassenden Überblick über die Umgestaltung von Garden Frediani bieten und es Ihnen ermöglichen, die Mühe und Hingabe zu würdigen, die wir in die Schaffung einer einzigartigen und lohnenden Umgebung gesteckt haben.
Select the country and your language

English

Español